Reventa » Negocio » Montesinos » Los

Negocio · Reventa Montesinos, Los Montesinos

Características

Negocio · Reventa Montesinos, Los Montesinos

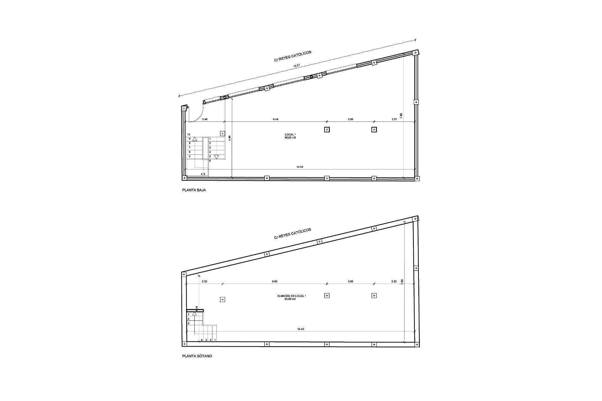
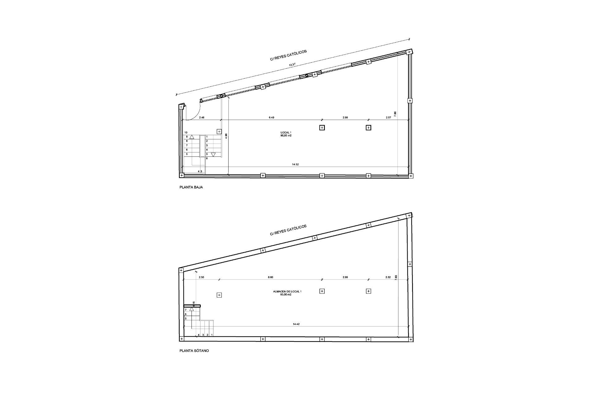
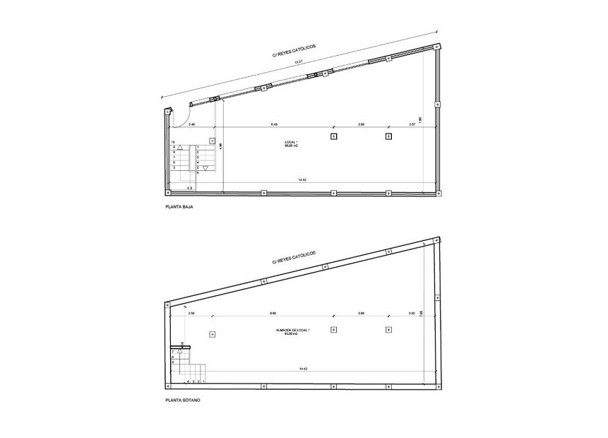
  • Metros 182m2
Construidos: 182m2
Calificación energética: X
Sin muebles
Trastero

Descripción

Mapa

Comienza una nueva vida

Realizar una consulta

Responsable del tratamiento: Red Palm Estate SL, Finalidad del tratamiento: Gestión y control de los servicios ofrecidos a través de la página Web de Servicios inmobiliarios, Envío de información a traves de newsletter y otros, Legitimación: Por consentimiento, Destinatarios: No se cederan los datos, salvo para elaborar contabilidad, Derechos de las personas interesadas: Acceder, rectificar y suprimir los datos, solicitar la portabilidad de los mismos, oponerse altratamiento y solicitar la limitación de éste, Procedencia de los datos: El Propio interesado, Información Adicional: Puede consultarse la información adicional y detallada sobre protección de datos Aquí.
Red Palm Estate
WhatsApp