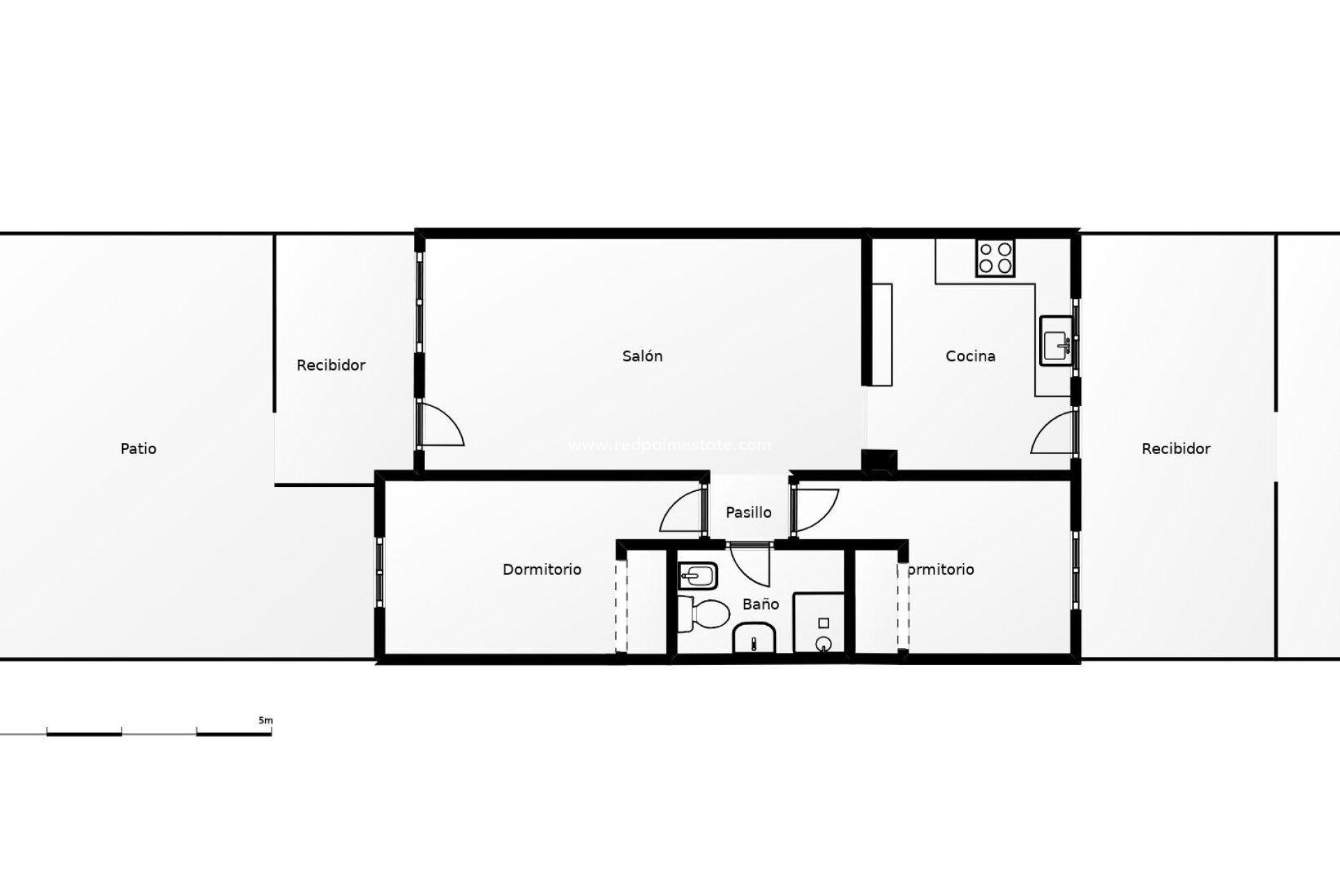
Bungalow de planta baja en la zona de PAU 26 en Orihuela Costa, una ubicación tranquila y bien comunicada, ideal tanto como residencia habitual como para disfrutar de estancias vacacionales.. . La vivienda cuenta con doble orientación norte y sur, lo que garantiza una excelente ventilación y luminosidad durante todo el día. En la parte frontal dispone de un agradable jardín exterior con acceso directo a la vivienda, perfecto para disfrutar del aire libre o crear una acogedora zona de descanso.. . En la parte trasera encontramos un amplio patio con orientación sur, ideal para aprovechar al máximo el sol, con acceso directo a la piscina comunitaria, situada dentro de una cuidada urbanización rodeada de zonas verdes.. . El interior de la vivienda ofrece un amplio salón con cocina americana, creando un espacio abierto, funcional y cómodo para el día a día. Dispone de dos habitaciones luminosas y un baño completo, todo en perfecto estado y listo para entrar a vivir.. . Su ubicación es excelente, muy cerca del reconocido Campo de Golf Villamartín, del popular Zenia Boulevard y con supermercados y todos los servicios necesarios a pocos minutos, lo que garantiza comodidad y calidad de vida durante todo el año.. . Además, ha estado alquilado varias veces como alquiler de larga temporada, lo que la convierte en una excelente opción también como inversión, ofreciendo un potencial de rentabilidad comprobado.. . Una oportunidad ideal para quienes buscan tranquilidad, sol y cercanía a todos los servicios en la Costa Blanca, con la ventaja añadida de un inmueble con historial de alquiler estable.. . Precio: 169.000€ Impuestos y gastos de compraventa No incluidos (según Normativa aplicable). Se informará del desglose de gastos adicionales antes de la reserva.. En caso de operación con doble mediación, los honorarios profesionales a cargo del comprador serán del 1,5 % del precio final de compraventa, con un mínimo de 3.000 €, más IVA (21 %), salvo pacto expreso en contrario. Dichos honorarios no están incluidos en el precio anunciado