APARTAMENTO DE DOS HABITACIONES Y UN BAÑO EN PRIMERA LÍNEA DE GOLF
Este apartamento en el primer piso está ubicado en la Fase 4 de este resort de golf de 18 hoyos diseñado por Jack Niklaus y está aproximadamente a diez minutos a pie del "centro de la ciudad" del resort con restaurante, bar, supermercado, cafetería y encantadores jardines de la Hacienda de la familia Riquelme de donde el resort toma su nombre.
Hay 19 piscinas en el Resort, la más cercana está a tiro de piedra.
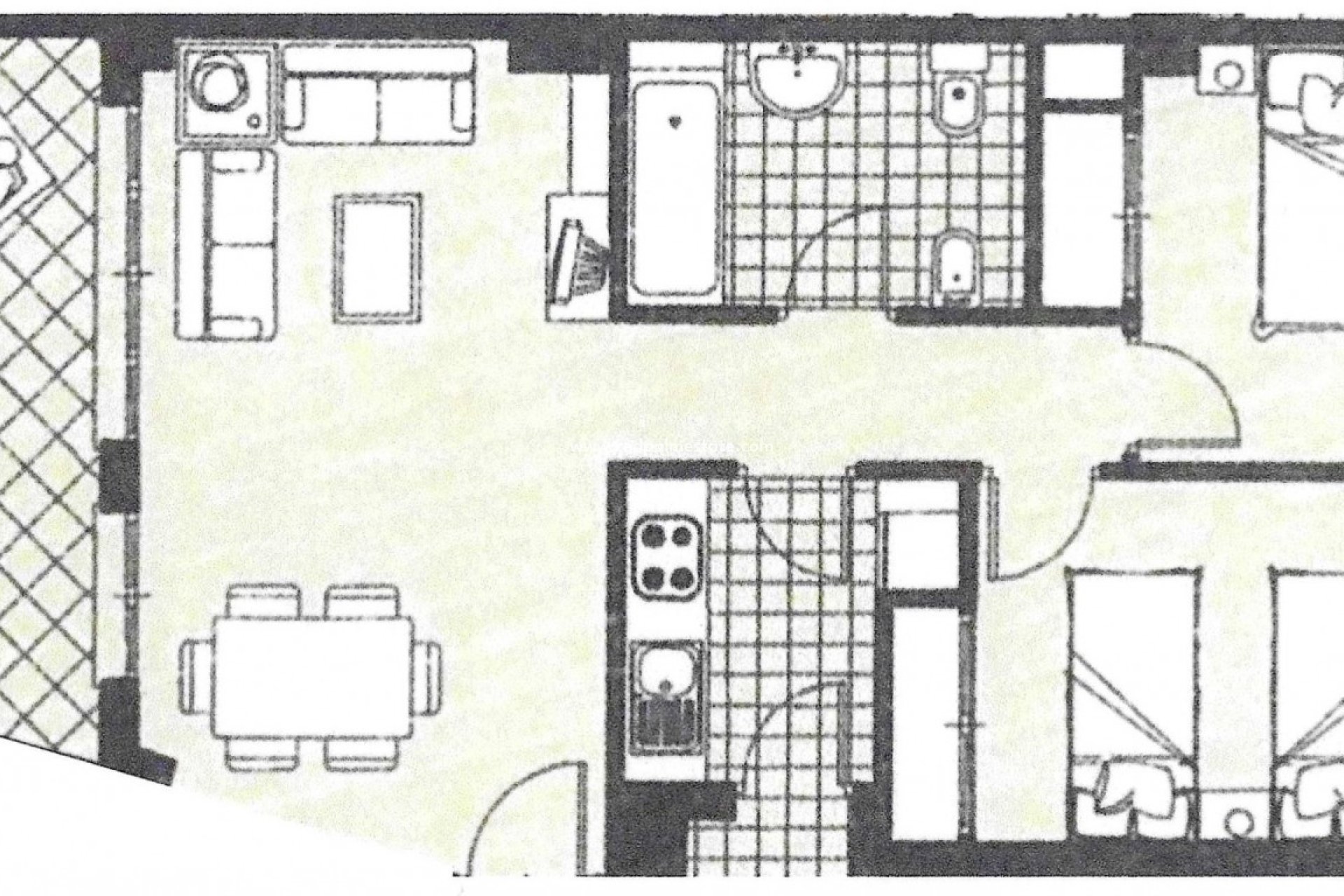
El apartamento ingresa al salón / comedor con grandes puertas corredizas que conducen a la terraza, que se ha cerrado con puertas corredizas que permiten su uso durante todo el año y está embaldosada para combinar con el interior de la propiedad.
Hay hermosas vistas del campo de golf y de las montañas en la distancia.
El pasillo conduce a los dos dormitorios. Cada dormitorio cuenta con armarios empotrados dobles con puertas correderas que ofrecen amplio espacio de almacenamiento y cajones, además de balcones Julieta independientes.
La cocina consta de una variedad de unidades base, encimeras y unidades de pared y está equipada con horno, vitrocerámica, extractor, lavadora, lavavajillas y frigorífico-congelador.
El baño consta de inodoro, bidé, tocador con lavabo y espejo. Cuenta con una cabina de ducha esquinera y amplio espacio para convertirla en una ducha a ras de suelo. Es uno de los diseños de baño más amplios de las propiedades de Hacienda Riquelme.
Este apartamento se presta perfectamente para ser modernizado con un diseño de planta abierta de estilo americano como el "Apartamento remodelado" en nuestro sitio web.
El acogedor y típico pueblo español de Sucina, con sus bares, restaurantes y plaza de la iglesia, está a sólo unos minutos en coche.
El aeropuerto internacional de Murcia se encuentra aproximadamente a 20 minutos en coche y el aeropuerto de Alicante aproximadamente a 1 hora y 15 minutos en coche.
Las ciudades históricas de Murcia y Cartagena se encuentran ambas a unos 40 minutos en coche.
Las playas de la Costa Cálida que recorren el litoral mediterráneo se encuentran a sólo 20 minutos en coche.
Visite la GALERÍA en nuestro sitio web para ver fotografías de lugares para visitar en el área local y más allá.