Obra nueva » Apartmentos » Villajoyosa &raq

COMPLEJO DE OBRA NUEVA EN VILLAYOJOSA Villajoyosa, Playa del Torres

Características

COMPLEJO DE OBRA NUEVA EN VILLAYOJOSA Villajoyosa, Playa del Torres

COMPLEJO DE OBRA NUEVA EN VILLAYOJOSA

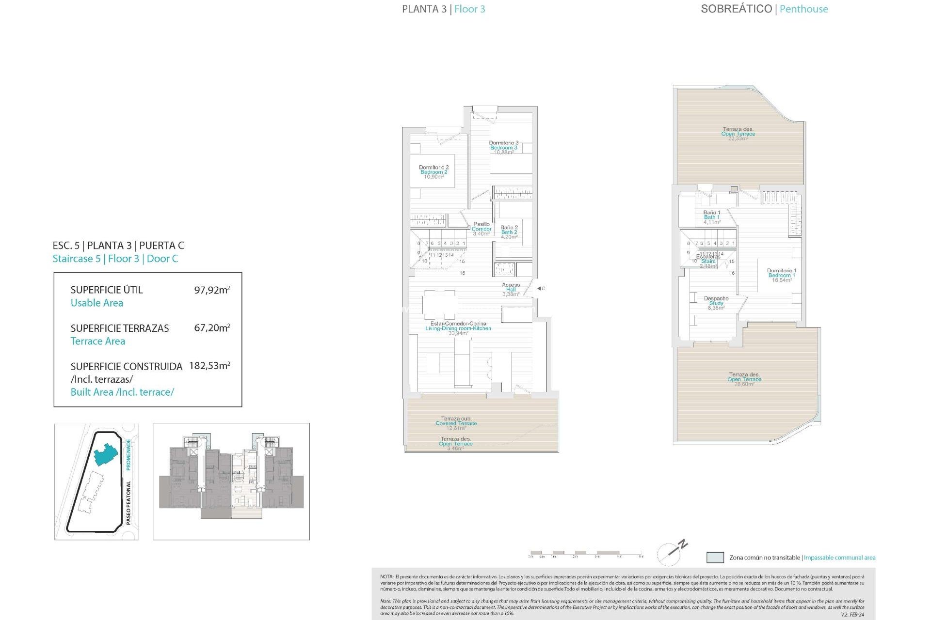
  • Metros 115m2
  • Habitaciones 3
  • Baños 2
  • Piscina
Habitaciones:3
Baños: 2
Construidos: 115m2
Útiles: 97m2
Piscina:
Distancia a la playa: 200 Mts.
Calificación energética: B
Solárium: Sí
Piscina comunitaria
Gimnasia
Cerrado
Terraza: 66 M2.
Número de plazas de aparcamiento: 1
Vistas: Mar
Cerca de escuelas
Cerca del centro comercial
Habitaciones Dobles: 3
Ascensor
Ubicación: Costera, Urbanización
Aire Acondicionado: Preinstalado
Playa: 200 Metros
Plaza de aparcamiento
Espacio Construido Útil: 97 Msq.

Descripción

Mapa

Comienza una nueva vida

Realizar una consulta

Responsable del tratamiento: Red Palm Estate SL, Finalidad del tratamiento: Gestión y control de los servicios ofrecidos a través de la página Web de Servicios inmobiliarios, Envío de información a traves de newsletter y otros, Legitimación: Por consentimiento, Destinatarios: No se cederan los datos, salvo para elaborar contabilidad, Derechos de las personas interesadas: Acceder, rectificar y suprimir los datos, solicitar la portabilidad de los mismos, oponerse altratamiento y solicitar la limitación de éste, Procedencia de los datos: El Propio interesado, Información Adicional: Puede consultarse la información adicional y detallada sobre protección de datos Aquí.
Red Palm Estate
WhatsApp