HERMOSOS APARTAMENTOS CON VISTAS AL MAR EN LA MANGA
Esta urbanización está ubicada en la zona de mayor expansión de La Manga.
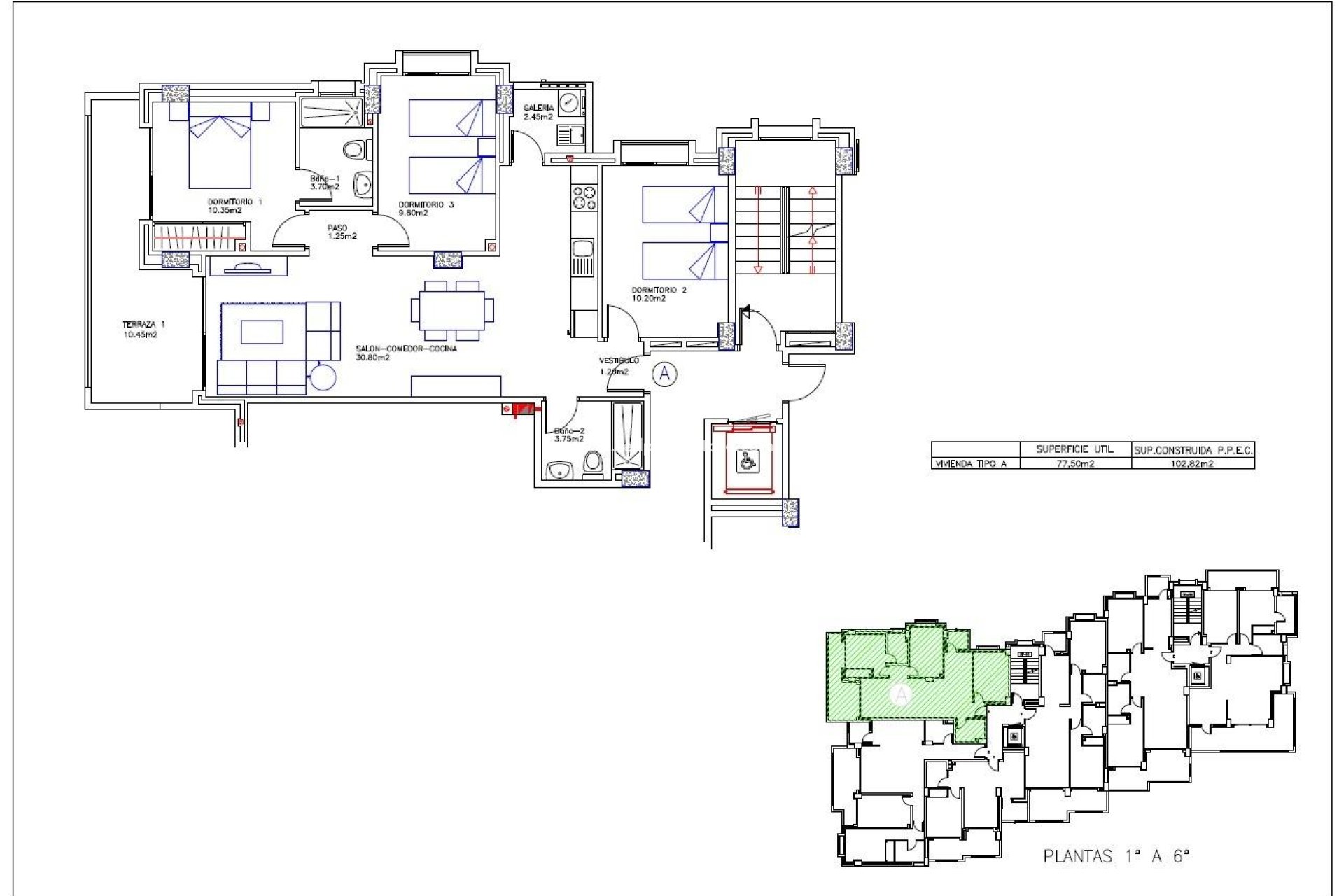
En esta nueva urbanización las viviendas han sido diseñadas para aprovechar cada rincón de la casa, así como el cuidado en la elección de los materiales y su diseño.
Apartamentos con puerta de entrada blindada y puertas lacadas en blanco con herrajes de acero inoxidable.
Persianas blancas, monobloque y doble acristalamiento con cámara de aire.
En el dormitorio principal armario empotrado con puertas correderas, con balda separadora en el entrepiso, barra y cómoda de tres cajones.
Cocina con mueble alto y bajo, en color blanco, tirador tipo gola, fregadero 1 seno con escurridor, vitrocerámica, horno eléctrico y campana extractora.
Preinstalación de aire acondicionado (frío y calor) mediante conductos con provisión de zonificación de estancias.
La Manga del Mar Menor es una franja de tierra natural rodeada por dos mares, el Mar Menor y el Mar Mediterráneo. A esta rareza se le suman las múltiples opciones de ocio y tiempo libre, restaurantes, supermercados, centros médicos, farmacias, polideportivos náuticos, campos de golf.
La Manga se encuentra en la costa norte de la Costa Cálida y es un destino de vacaciones popular para los turistas. La estrecha franja de tierra que separa la laguna cálida y el mar más frío tiene un microclima único. Es una de las zonas más exóticas de España.
El aeropuerto de Corvera está a aproximadamente 1 hora en coche y el aeropuerto de Alicante a unas 2 horas.
410