Obra nueva » Apartamento » Orihuela Costa &

Magní­fico apartamento entre el mar y el golf! Orihuela Costa, Villamartín

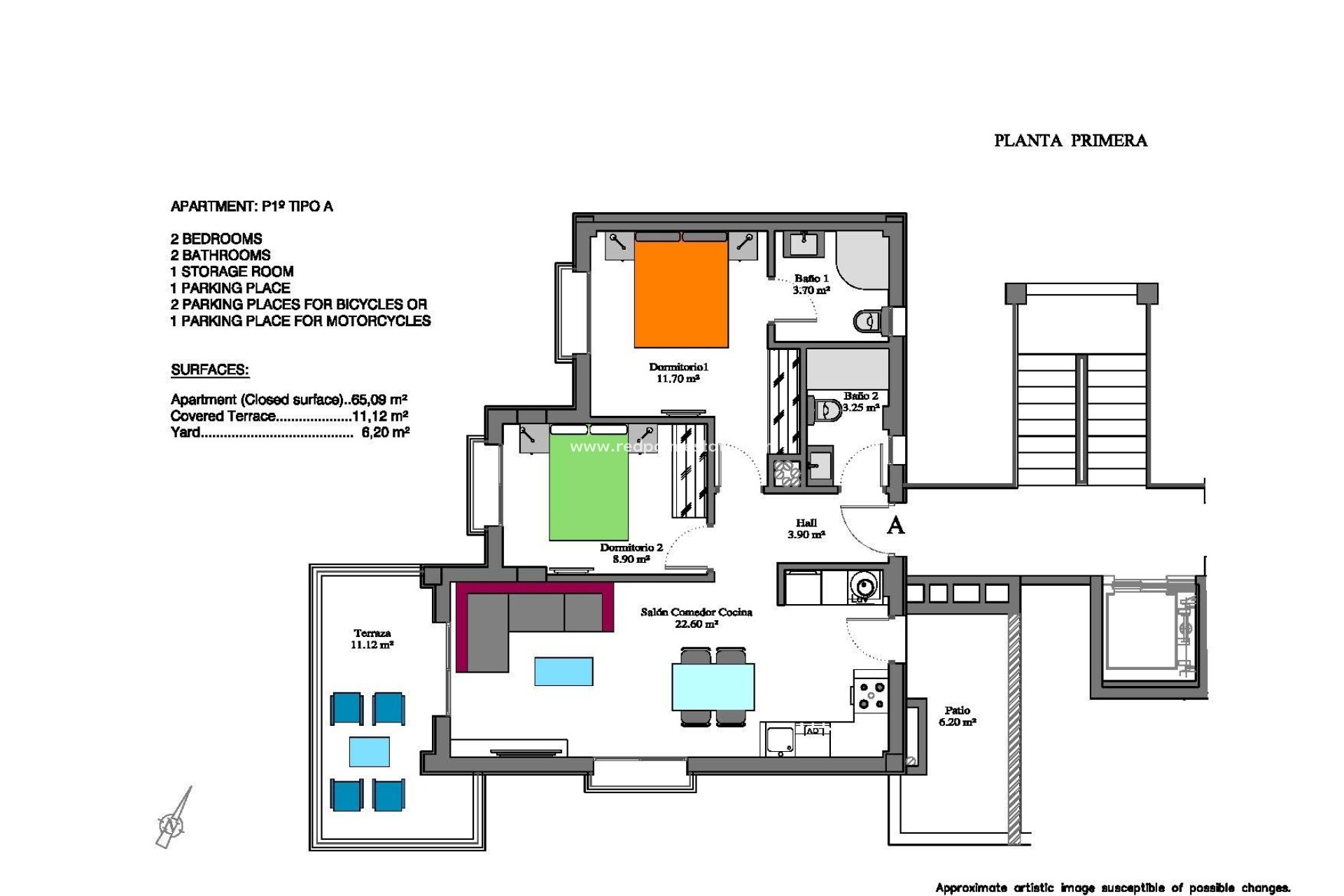
Características

Magní­fico apartamento entre el mar y el golf! Orihuela Costa, Villamartín

Magní­fico apartamento entre el mar y el golf!

  • Metros 65m2
  • Habitaciones 2
  • Baños 2
  • Piscina
Habitaciones:2
Baños: 2
Construidos: 65m2
Útiles: 55m2
Piscina:
Distancia a la playa: 4500 Mts.
Calificación energética: X
Espacio útil de construcción: 55 Msq.
Almacenamiento / Trastero
Cerca de la ruta del autobús
Piscina comunitaria
Cerrado
Playa: 4500 Metros
Propiedad cerca de golf/resort de golf
Cerca de escuelas
Cerca del centro comercial
Aire acondicionado: Sí, preinstalado
Ascensor
Ubicación: Costera, Urbanización
Habitaciones Dobles: 2
Terraza: 11 Ms2.
Plaza de aparcamiento

Descripción

Mapa

Comienza una nueva vida

Realizar una consulta

Responsable del tratamiento: Red Palm Estate SL, Finalidad del tratamiento: Gestión y control de los servicios ofrecidos a través de la página Web de Servicios inmobiliarios, Envío de información a traves de newsletter y otros, Legitimación: Por consentimiento, Destinatarios: No se cederan los datos, salvo para elaborar contabilidad, Derechos de las personas interesadas: Acceder, rectificar y suprimir los datos, solicitar la portabilidad de los mismos, oponerse altratamiento y solicitar la limitación de éste, Procedencia de los datos: El Propio interesado, Información Adicional: Puede consultarse la información adicional y detallada sobre protección de datos Aquí.
Red Palm Estate
WhatsApp