Obra nueva » Apartmentos » Orihuela Costa &

RESIDENCIAL DE OBRA NUEVA EN PLAYA FLAMENCA !!! Orihuela Costa, Playa Flamenca

Características

RESIDENCIAL DE OBRA NUEVA EN PLAYA FLAMENCA !!! Orihuela Costa, Playa Flamenca

RESIDENCIAL DE OBRA NUEVA EN PLAYA FLAMENCA !!!

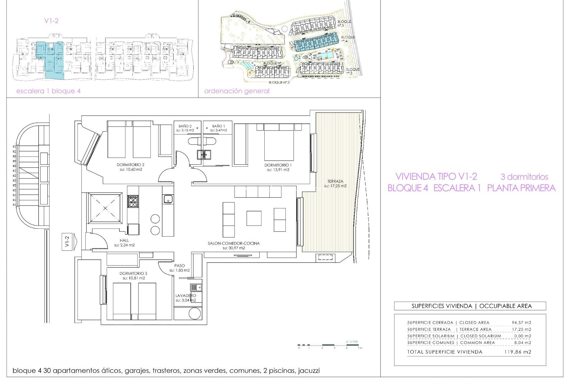
  • Metros 94m2
  • Habitaciones 3
  • Baños 2
  • Piscina
Habitaciones:3
Baños: 2
Construidos: 94m2
Útiles: 84m2
Piscina:
Distancia a la playa: 500 Mts.
Calificación energética: B
Espacio Construido Útil: 84 Msq.
Plaza de aparcamiento
Almacenamiento / Trastero
Cerca de la ruta del autobús
Piscina comunitaria
Cerrado
Número de plazas de aparcamiento: 1
Cerca de escuelas
Cerca del centro comercial
Habitaciones Dobles: 3
Ascensor
Ubicación: Costera, Urbanización
Aire Acondicionado: Preinstalado
Cerca de árboles
Terraza: 17 M2.
Playa: 500 Metros

Descripción

Mapa

Comienza una nueva vida

Realizar una consulta

Responsable del tratamiento: Red Palm Estate SL, Finalidad del tratamiento: Gestión y control de los servicios ofrecidos a través de la página Web de Servicios inmobiliarios, Envío de información a traves de newsletter y otros, Legitimación: Por consentimiento, Destinatarios: No se cederan los datos, salvo para elaborar contabilidad, Derechos de las personas interesadas: Acceder, rectificar y suprimir los datos, solicitar la portabilidad de los mismos, oponerse altratamiento y solicitar la limitación de éste, Procedencia de los datos: El Propio interesado, Información Adicional: Puede consultarse la información adicional y detallada sobre protección de datos Aquí.
Red Palm Estate
WhatsApp