Villas de nueva construcción con piscina privada en Daya Nueva, Costa Blanca
Modernas villas adosadas e independientes con un excelente diseño
Descubra esta exclusiva promoción de tres villas de nueva construcción, tanto adosadas como independientes, situadas en el encantador pueblo de Daya Nueva, en el sur de la provincia de Alicante. Estas elegantes propiedades están diseñadas pensando en el confort, la luz y la privacidad, y ofrecen una experiencia de vida excepcional a pocos minutos de las playas de La Marina y Guardamar del Segura.
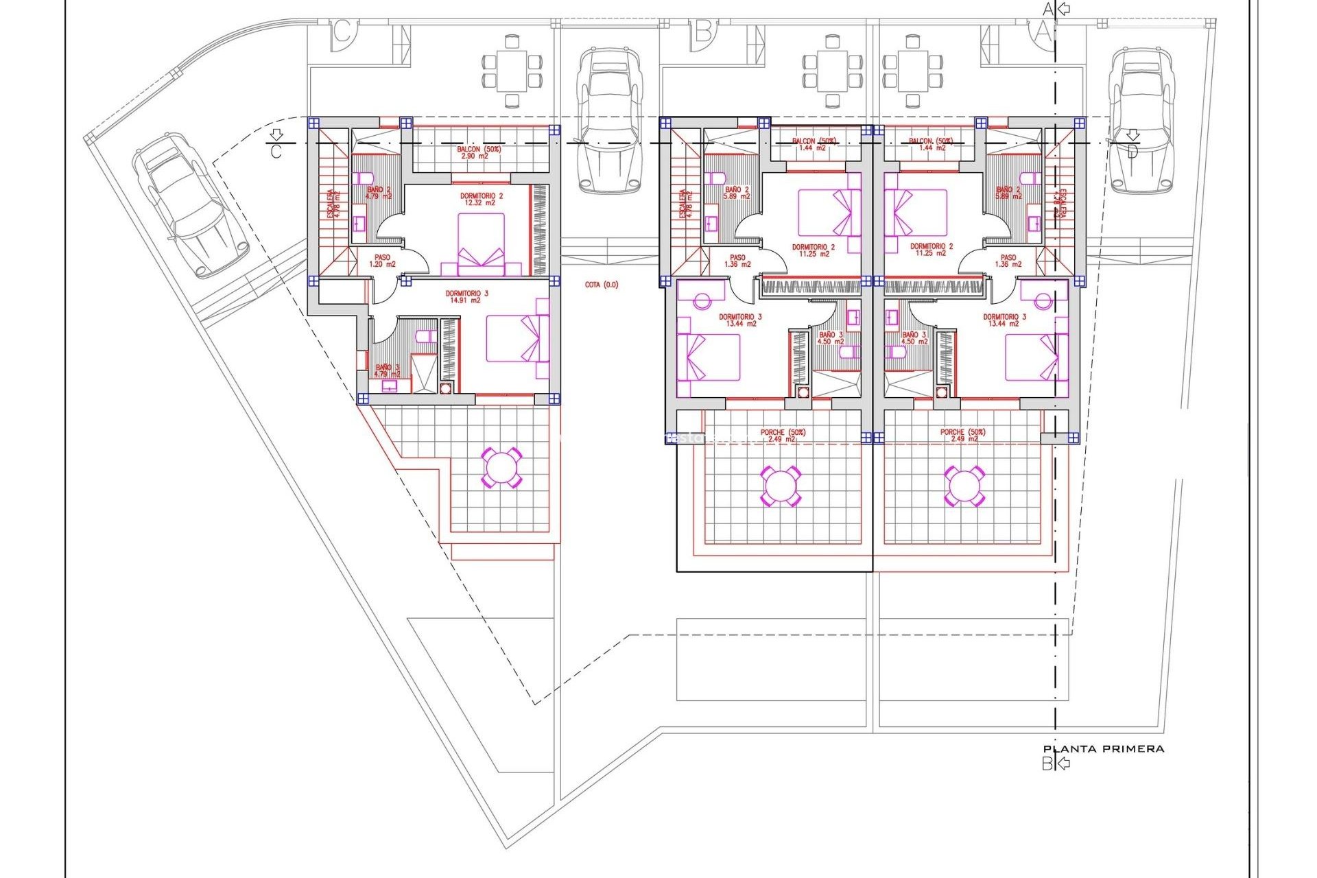
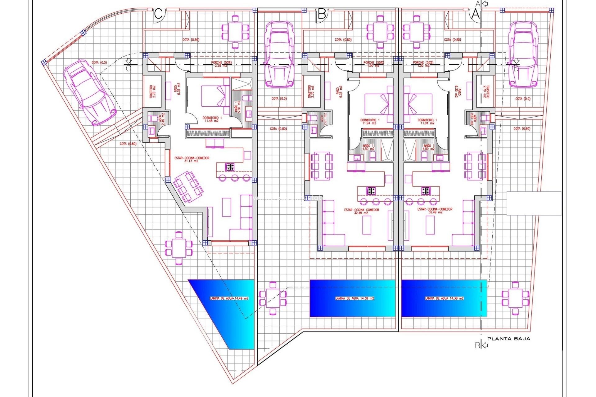
Cada villa cuenta con un amplio y luminoso salón-comedor, una cocina abierta con barra americana, tres dormitorios, tres baños completos y un aseo de invitados. Disfrute del clima mediterráneo en las dos terrazas superiores, relájese en su piscina privada o aparque cómodamente en su propia parcela.
Comodidad y calidad en cada detalle
Estas viviendas han sido diseñadas para maximizar la luz natural y la vida al aire libre. Las características principales incluyen:
Piscina privada y aparcamiento en la parcela
Dos terrazas descubiertas en la planta superior
Solárium opcional en la azotea para disponer de espacio exterior adicional (con coste adicional)
Baños completamente amueblados con mamparas de ducha
Pre-Instalación de aire acondicionado por conductos
Persianas automáticas de aluminio en dormitorios, cocina y baños
La planta baja, de concepto abierto, combina la cocina, el comedor y el salón en un espacio cohesionado y luminoso que se abre directamente a la terraza y la zona de la piscina, perfecto para relajarse o recibir invitados.
Ubicación privilegiada cerca de todos los servicios
Situadas en una tranquila zona residencial de Daya Nueva, estas villas se encuentran a solo 3 minutos a pie del centro del pueblo, donde encontrará tiendas, restaurantes y servicios esenciales. Este entorno tranquilo ofrece una combinación ideal entre el encanto de un pueblo y la comodidad de la costa.
Distancias a puntos de interés:
Playas de Guardamar del Segura y La Marina: 12 km (10 minutos)
Golf La Marquesa (Ciudad Quesada): 9 km (10 minutos)
Centro comercial Habaneras (Torrevieja): 20 km (20 minutos)
Aeropuerto Internacional de Alicante: 38 km (25 minutos)
Hospital Vega Baja: 14 km (15 minutos)
Su casa ideal en la Costa Blanca le espera
Estas villas son perfectas como residencia permanente, refugio vacacional o inversión. Con una arquitectura moderna, un diseño cuidado y una ubicación tranquila pero bien comunicada, se trata de una oportunidad única para adquirir una vivienda de calidad en la Costa Blanca. Póngase en contacto con nosotros hoy mismo para obtener más información y concertar una visita.
410